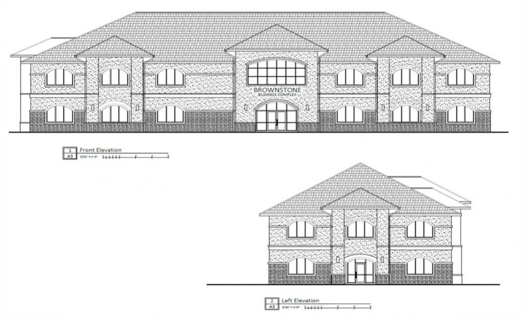
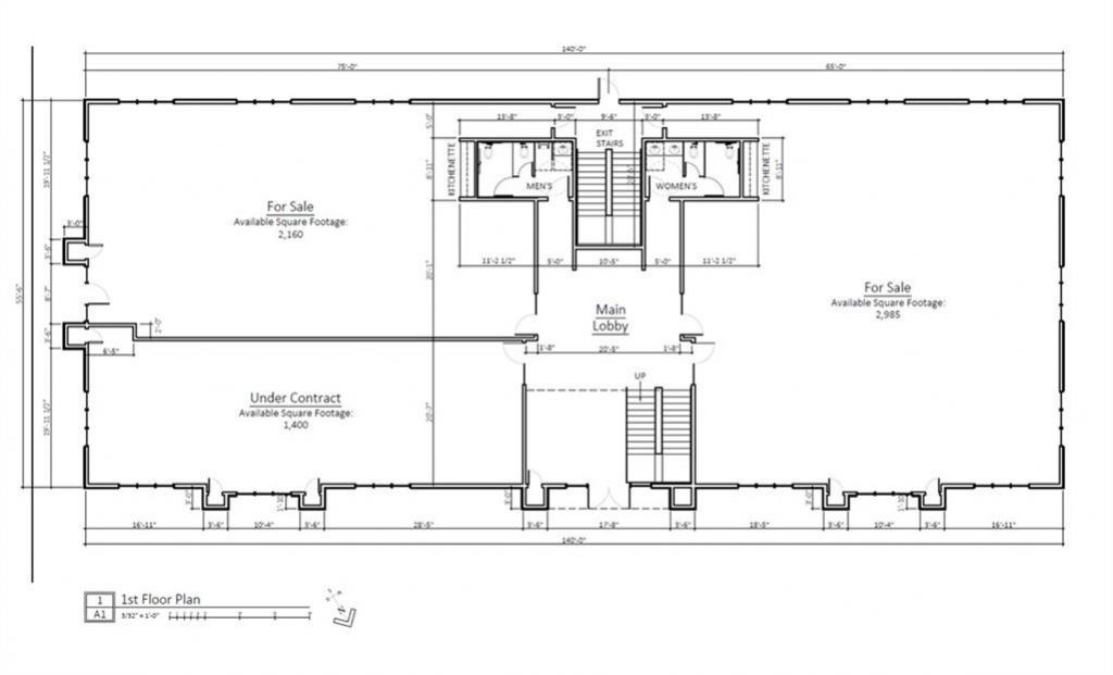
Welcome to "Brownstone Office Park" Mandeville's Premier Office Park and host to some of Greater New Orleans Top businesses. Our Newest addition is a 15,810 SF Business Complex offering ample parking space with up to 65 spaces. Brownstone's New Business Complex can be purchased in it's entirety or be subdivided into a size that is tailored to fit your business needs. The developer is able to build the unit to suit the needs of the buyer with estimated completion approximately 12 months after contract. The minimum space that will be offered by developer will be 1,400 SF. Brownstone is perfectly located on Hwy 190 also known as Florida Street in Old Mandeville this new business Complex will offer easy access to the Causeway for commuters, ability to fuel up in minutes with a Race Track Station nearby, Restaurants, Shopping as well as Old Mandeville's Lakefront for when you need to a break or a leisurely stroll down Girod to do a little business.
Listed By
Agency Name: PREMIER PROPERTIES NORTHSHORE
Agency Phone: (985) 893-0733
Shown By
Agency Title: Wurth Real Estate Services
Agency Phone: (866) 961-4414
Send an email with a link to
2315 Florida Street, Unit 400, Mandeville, LA 70448.
Contact an agent to learn more about
2315 Florida Street, Unit 400, Mandeville, LA 70448.
Thank you for your inquiry! As a thank you, we have a Special Mortgage Offer for You.
We would like to provide you a free, no-obligation, home loan pre-approval review.
Enter your mobile number below to have the property address and page url texted to your phone.
Select a category below to assign the saved listing to.
Please note, closing this modal will save the listing to the default category.

The multiple listing information is provided by the Greater Baton Rouge Association of REALTORS®, Inc. multiple listing service from a copyrighted compilation of listings. The compilation of listings and each individual listing are ©2025 MLS. All Rights Reserved. The information provided is for clients' personal, non-commercial use and may not be used for any purpose other than to identify prospective properties clients may be interested in purchasing. All properties are subject to prior sale or withdrawal. Show More...
Copyright © 2025 New Orleans Metropolitan Association of REALTORS®, Inc. All Rights Reserved. The sharing of MLS database, or any portion thereof, with any unauthorized third party is strictly prohibited. Information contained on this site is believed to be reliable; yet, users of this web site are responsible for checking the accuracy, completeness, currency, or suitability of all information. Neither the New Orleans Metropolitan Association of REALTORS®, Inc. nor the Gulf South Real Estate Information Network, Inc. makes any representation, guarantees, or warranties as to the accuracy, completeness, currency, or suitability of the information provided. They specifically disclaim any and all liability for all claims or damages that may result from providing information to be used on the web site, or the information which it contains, including any websites maintained by third parties, which may be linked to this web site. The information being provided is for the consumers personal, non-commercial use, and may not be used for any purpose other than to identify prospective properties which consumers may be interested in purchasing. The user of this site is granted permission to copy a reasonable and limited number of copies to be used in satisfying the purposes identified in the preceding sentence. Last Updated: September 25, 2025 2:27 PM UTC Show More...
2315 Florida Street, Unit 400 | MLS# 2525913
This commercial property located at 2315 Florida Street, Unit 400, Mandeville, LA 70448 is currently listed for sale with an asking price of $371,001. Search Mandeville real estate on www.wurthre.com today.