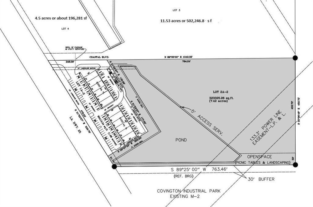
Industrial Site, Ideal for a distribution center Located just off of LA. 25 on Coastal Blvd. This site is priced below market because of the Utility R O W which takes a small portion of the south side, NOTE that this can still be used for parking or storage yard. See the other adds for additional acreage available on this site. Up to about 23.5 acres.
Listed By
Agency Name: ABEK Real Estate
Agency Phone: (985) 259-4605
Shown By
Agency Title: Wurth Real Estate Services
Agency Phone: (866) 961-4414
Estimated Payment
$ 1,879.49 per month $1,661.72 Principal & Interest $0.00 Property Tax (data not provided by mls) $217.77 Homeowner's InsuranceSend an email with a link to
Coastal Boulevard, Covington, LA 70435.
Contact an agent to learn more about
Coastal Boulevard, Covington, LA 70435.
Thank you for your inquiry! As a thank you, we have a Special Mortgage Offer for You.
We would like to provide you a free, no-obligation, home loan pre-approval review.
Enter your mobile number below to have the property address and page url texted to your phone.
Select a category below to assign the saved listing to.
Please note, closing this modal will save the listing to the default category.

The multiple listing information is provided by the Greater Baton Rouge Association of REALTORS®, Inc. multiple listing service from a copyrighted compilation of listings. The compilation of listings and each individual listing are ©2025 MLS. All Rights Reserved. The information provided is for clients' personal, non-commercial use and may not be used for any purpose other than to identify prospective properties clients may be interested in purchasing. All properties are subject to prior sale or withdrawal. Show More...
Copyright © 2025 New Orleans Metropolitan Association of REALTORS®, Inc. All Rights Reserved. The sharing of MLS database, or any portion thereof, with any unauthorized third party is strictly prohibited. Information contained on this site is believed to be reliable; yet, users of this web site are responsible for checking the accuracy, completeness, currency, or suitability of all information. Neither the New Orleans Metropolitan Association of REALTORS®, Inc. nor the Gulf South Real Estate Information Network, Inc. makes any representation, guarantees, or warranties as to the accuracy, completeness, currency, or suitability of the information provided. They specifically disclaim any and all liability for all claims or damages that may result from providing information to be used on the web site, or the information which it contains, including any websites maintained by third parties, which may be linked to this web site. The information being provided is for the consumers personal, non-commercial use, and may not be used for any purpose other than to identify prospective properties which consumers may be interested in purchasing. The user of this site is granted permission to copy a reasonable and limited number of copies to be used in satisfying the purposes identified in the preceding sentence. Last Updated: September 25, 2025 2:27 PM UTC Show More...
Coastal Boulevard | MLS# 2458528
This land located at Coastal Boulevard, Covington, LA 70435 is currently listed for sale with an asking price of $746,650. The property has approximately 7.42 Acres. Search Covington real estate on www.wurthre.com today.