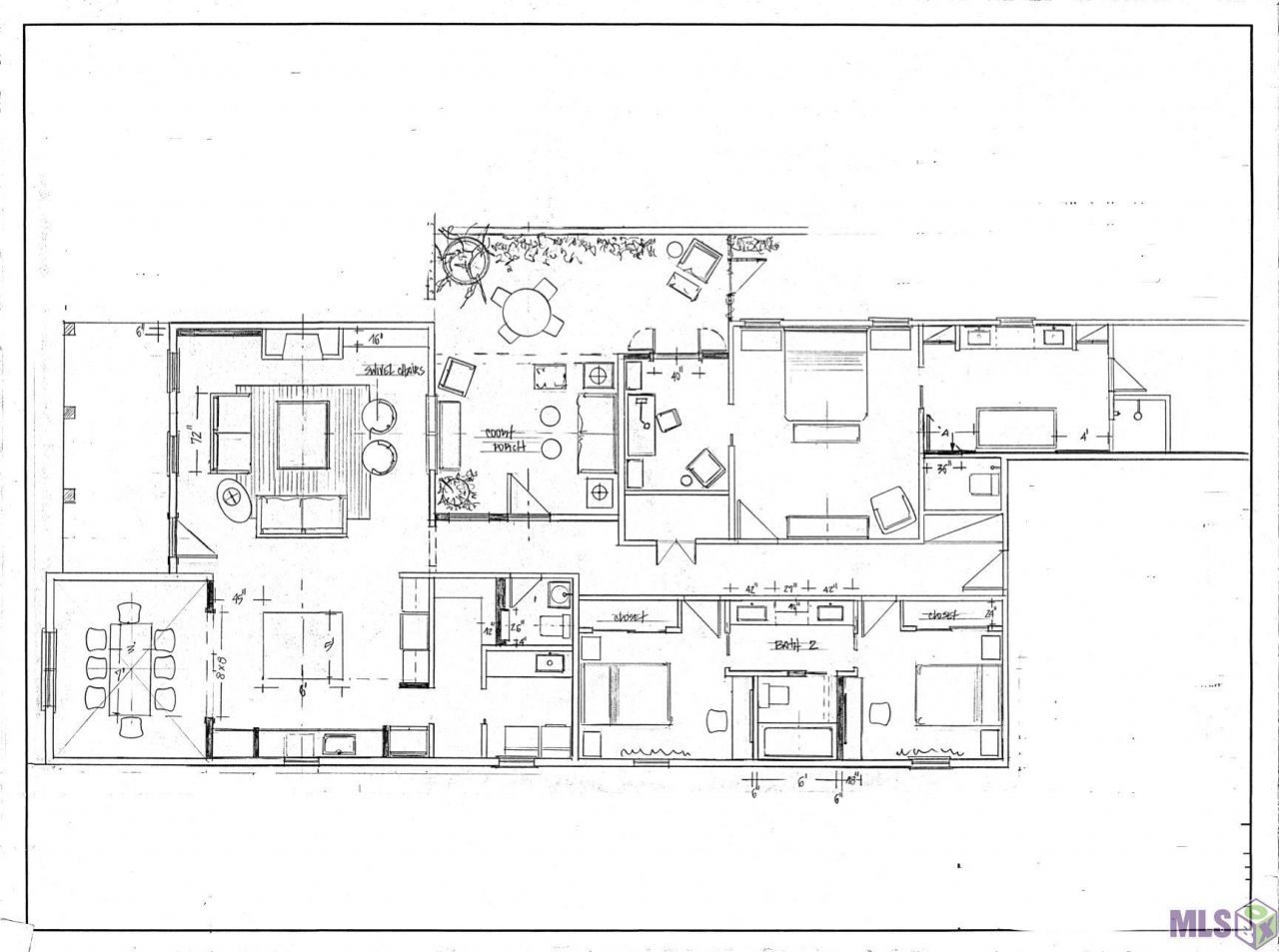
LAFOSSE CONSTRUCTION HOME Preferred lender is Assurance Financial Charlotte Guidroz 225 281 6101 offers $2,500.00 towards closing cost POOL AND THE PECUE EXTENSION ARE OPEN. No carpet. One-story 3 bedroom home with 2 and one half bathroom and a office/nursery or craft room. It features high-end finishes throughout, including quartzite countertops, engineered wood floors (no Carpet), top-of-the-line appliances and many more. The great room showcases a vent less fireplace and a beautiful view of the private courtyard. The kitchen offers spacious countertops and a large walk-in pantry. There are two bedrooms have a Jack-and-Jill bath. The primary bedroom is located at the rear of the home for optimal privacy and features a spa-like en-suite bathroom with dual vanities, a freestanding large garden tub, and a standalone walk -in shower. It also includes a huge walk-in closet. The utility room is spacious and equipped with a sink and a marble countertop for folding clothes. Fully fenced yard! For this home the days on market are not accurate as the house was marketed prior to and during construction.
Listed By
Agency Name: Keller Williams Realty Red Stick Partners
Agency Phone: 225-768-1800
Shown By
Agency Title: Wurth Real Estate Services
Agency Phone: (866) 961-4414
Estimated Payment
$ 1,326.58 per month $1,172.87 Principal & Interest $0.00 Property Tax (data not provided by mls) $153.71 Homeowner's InsuranceSend an email with a link to
7517 Mcmahon Dr, Baton Rouge, LA 70817.
Contact an agent to learn more about
7517 Mcmahon Dr, Baton Rouge, LA 70817.
Thank you for your inquiry! As a thank you, we have a Special Mortgage Offer for You.
We would like to provide you a free, no-obligation, home loan pre-approval review.
Enter your mobile number below to have the property address and page url texted to your phone.
Select a category below to assign the saved listing to.
Please note, closing this modal will save the listing to the default category.

The multiple listing information is provided by the Greater Baton Rouge Association of REALTORS®, Inc. multiple listing service from a copyrighted compilation of listings. The compilation of listings and each individual listing are ©2025 MLS. All Rights Reserved. The information provided is for clients' personal, non-commercial use and may not be used for any purpose other than to identify prospective properties clients may be interested in purchasing. All properties are subject to prior sale or withdrawal. Show More...
Copyright © 2025 New Orleans Metropolitan Association of REALTORS®, Inc. All Rights Reserved. The sharing of MLS database, or any portion thereof, with any unauthorized third party is strictly prohibited. Information contained on this site is believed to be reliable; yet, users of this web site are responsible for checking the accuracy, completeness, currency, or suitability of all information. Neither the New Orleans Metropolitan Association of REALTORS®, Inc. nor the Gulf South Real Estate Information Network, Inc. makes any representation, guarantees, or warranties as to the accuracy, completeness, currency, or suitability of the information provided. They specifically disclaim any and all liability for all claims or damages that may result from providing information to be used on the web site, or the information which it contains, including any websites maintained by third parties, which may be linked to this web site. The information being provided is for the consumers personal, non-commercial use, and may not be used for any purpose other than to identify prospective properties which consumers may be interested in purchasing. The user of this site is granted permission to copy a reasonable and limited number of copies to be used in satisfying the purposes identified in the preceding sentence. Last Updated: September 25, 2025 2:27 PM UTC Show More...
7517 Mcmahon Dr | MLS# 2023018405
This single family home located at 7517 Mcmahon Dr, Baton Rouge, LA 70817 is currently listed for sale with an asking price of $527,000. This property was built in 2024 and has 3 bedrooms and 2 full and 1 partial baths with 2247 sq. ft. Mcmahon Dr is located in the Materra subdivision within the East Baton Rouge school district. Search Materra real estate on www.wurthre.com today.